顺德职业技术学院“势在必行”城市空间创意设计大赛
(44号参赛同学作品)势在必行城市空间设计比赛
2018-02-07
势在必行城市空间设计比赛
今天的设计 位于佛山市顺德区
业主是一位怎样的人呢?
他们一家三口
丈夫:是一名从事多年的职业足球球员,经常外出比赛,喜欢运动。
妻子:是一名居家的好妻子,陪伴丈夫踢球多年,一直陪在他身边,喜欢旅游。
孩子:是一个年轻有为的足球少年,优良传统,热爱各项运动,需要一个小型的足球场。
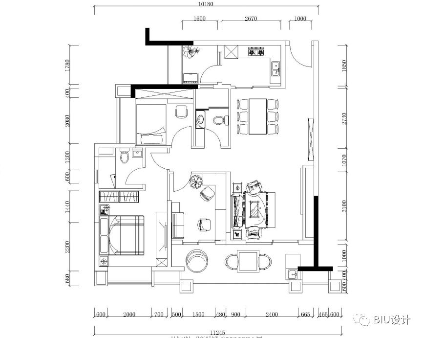
此户型为03户型
面积约为110㎡
原始平面图: 改后平面图:
我根据业主的信息分为:一厅一厨两卫两房 加上两个阳台
接下来是?
意向图的展示
万众期待的效果图
大厅
饭厅
主卧
利用简单的木地板的纹理,灰蓝配色,具有强烈的现感
卫生间 阳台

