顺德职业技术学院“势在必行”城市空间创意设计大赛
简之韵-势在必行城市空间创意大赛“敏捷9座04户型”
设计:陈烯 曹达豪
指导老师:谢穗坚
业主信息:
一位40岁的男性,现在外企公司担任高管,至今单身,喜欢安静,喜欢看书。通过与他的交谈,得知他平时的工作压力也很大,所以他希望家里是简单大气、舒适、休闲、恬静放松的氛围。
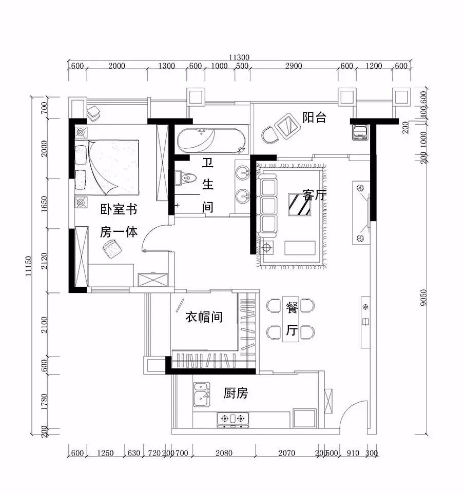
平面布局图
户型总面积:85m²
户型:两房三厅一卫
设计理念:
为了更适合业主的居住要求,我们在布局上做了很大的调整,强调了空间的融合。书房和卧室连一体,使得卧室的空间变的更丰富。 大的卫生间提升居住的品质,衣帽间与卫生间的窗户通透,使空气更好的对流,客厅与餐厅厨房相连,让空间变的更通畅明亮。
效果图
客厅--客厅以“白色为基调”,其他颜色为辅色调。暖色的灯光将家营造出温暖的感觉。采用象牙白瓷砖,显示出他独特的品味。中间墙采用高级背景墙,既大方又有气派,背景左侧则采用木饰面板,让空间更具有整体性,配上挂画使空间更丰富。
餐厅--从玄关进入我们可以看到木饰面板连接着我们的餐厅客厅,使之连成一体,让得空间更加流畅,黑白色调让客厅和餐厅更好的融合,让餐厅、客厅变的更大气。再衬上一侧的挂画,使整个空间倍添高贵的气质。
卧室--我们使卧室和书房连为一体,增大了卧室的面积。且用大量的暖色光营造氛围,舒适安稳。用了大面积重颜色的背景墙,丰富了卧室的设计感。使这个空间更有温度。用黑色搭配,使得它更有层次感。
卫生间--采用米白色构建,且将卫生间进行了改造,使其有9m²,放一个大的浴缸,让业主下班回到家可以在这个大的空间泡一个热水澡,放松自己。
衣帽间--衣帽间用了大面积防尘衣柜,现代美观,轻盈简约。
厨房--天花板和组合柜的台面采用白色,这种颜色使得厨房变的更明亮,木色的柜让厨房变的更有居家的感觉。

