顺德职业技术学院“势在必行”城市空间创意设计大赛
设 计:廖楠珍、梁家怡
指导老师:谢穗坚
四人户型
业主信息
男主人:35岁
职业:高级甜品制作师
兴趣:制作甜品、看书
女主人:33岁
职业:花店老板
兴趣:一名吃货、看漫画
一对男双胞胎:8岁
职业:两名小学生
兴趣:吃、吃、吃
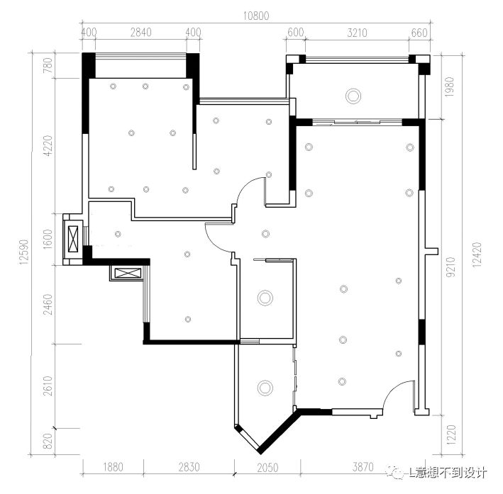
平面布置图
Layout plan
天花布置图
Smallpox arrangement
设计风格
Design style
混搭风格
Mix building a style
效果图
玄关
Abstruse
进门的玄关位置做了两个高低错落的柜子,既方便使用又好看。
厨房&餐厅
kitchen and refectory
男主人喜欢下厨,且家里人对吃的要求比较高,所以厨房设计成了以黑灰色调为主的开放式厨房,一字型的灶台再加一个L型的操作台,既划分了厨房的空间区域,也做到开放的形式。天花位置做了吊顶,也很好的划分了餐厅与客厅的关系。
客厅
Saloon
客厅整个呈白色调为主,又在其中添加了鲜艳的黄色和绿色两种鲜明的颜色,增加了整个空间的活跃气氛。开阔明亮的色调给这家人提供了一起休闲的舒适空间。
主卧
Bedroom
主卧设计得简单又舒适,大量的使用暖色调的家具和灯光。飘窗把它用来当休闲的小地方,也让整个空间显得不那么单调。
次卧
Second bedroom
次卧是一个两人居住的儿童房,做了一排靠窗的书桌,既让空间的采光得到了很好的发挥也方便孩子写作业。双层床给每个孩子做了一个小的独立空间。衣帽间和靠衣帽间的墙都采用了高低错落的柜子和小书架,增加空间的视觉感,增加了空间的趣味性。
书房
两个主人都比较喜欢看书,女主人平时会在家里做一下压花,所以书房两面墙都做了一排的柜子,一边是放书,一边供女主人放压花材料及作品。所以书房是划分在了主卧里面,可以很好的让休息和工作的区域分开,形成一个半开放式的工作书房。
卫生间
Toilet
生活阳台
Balcony life
休闲阳台
Recreational balcony
END

