顺德职业技术学院“势在必行”城市空间创意设计大赛
楼盘信息
深业城3期位于顺德区广乐路,地处繁华地带,商铺围绕,交通便利。小区生活设施完善,南靠细海河,风景优美。
楼盘:深业城3期
户型:两房两厅一厨一卫+入户花园
建筑面积:92.31㎡
套内面积:72.49㎡
甲方信息:
甲方为一对新婚夫妇,丈夫是一位退伍军人,妻子是室内设计师。
甲方要求:
在客厅会客,打游戏,不显得拥挤,感觉宽敞,舒适。希望有书房,生活阳台,既休闲又可以洗衣晾衣。充分利用空间。
喜欢简约,但不失个人风格。
设计理念:
在繁华都市里生存,难免会压抑了自己,带着梦想奔跑,难免会跌倒,但都是生活给的考验,经历过风雨的彩虹并不是最美的,是经历过磨难,懂得去珍惜,才是最温暖的地方,跨过生活的不易,做最真的自己。身心放松,释放压抑的自己,沉淀了生活,灵魂又开始飞扬。
有起有伏,先抑后扬。一片平静又安宁的栖息。
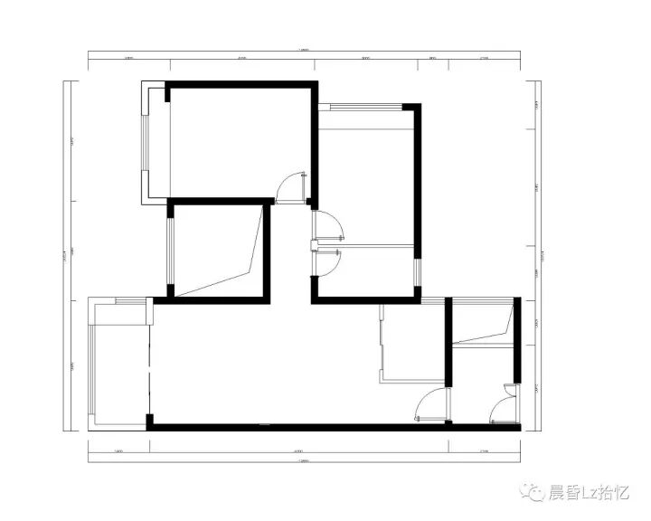
原平面图
户型由面积不同的方形拼接而成,形成了相对狭小细长的空间。除了房间,厨房和卫生间有窗口之外,客厅和餐厅只有阳台的落地窗用于采光。而客厅和餐厅又是一字型空间,隔断不当会影响采光。
平面布置图
灰加原木,营造干净,整洁的氛围,在装饰与摆设上独具心思带上活跃的气氛,简单又不失风格。每个空间都各有特点,除了心情转换,身心的放松之外,每个空间都带来不一样感受和体验。
着重客厅和餐厅的设计,放弃隔断和明显区分空间,营造开阔的视野,巧妙用地毯分开空间。 卧室衣柜解决大部分收纳,在飘窗上放置梳妆台,节省了空间并利用飘窗空间,一举两得。入户花园做成玄关,变成缓冲空间。
客厅利用了大面积灰色粉刷了墙面,与灰色的地板结合,又与白色的天花板形成对比,显得空间开阔。留白的墙面,打破成片灰色带来的压抑感,比墙面较为深色的灰窗帘,为空间带来层次感。天花板的暗藏灯带和筒灯弥补因为天气原因导致的采光不足;中间中国风的吸顶灯,不仅与灰色相呼应,还点缀天花板。
灰色亚麻沙发搭配不同颜色的抱枕,电视柜的绿植,与羽毛挂画交相辉映,打破空间的沉闷感,显得生动活泼带有一丝俏皮。实木的茶几和电视柜让空间变得稳重。
餐厅一面灰色墙,与客厅对应,白墙做了空间分隔,区分餐厅和厨房。没有过多的家具,节省了空间,又让空间“变”大。
挂画起了点缀的作用。花卉增加空间的生气,吊灯映照下,食物会变得更加诱人。
书房除了灰色墙,更多运用实木和金属结合,浅色的木地板,使得房间更加明亮。飘窗设计,让阅读多了一个地方选择。
与其他空间不一样的地方在于,黑色金属与原木碰撞出新视觉,本身沉闷的空间,因此多了新鲜感,缓解视觉疲劳,又增加乐趣。在书房换了另一种享受。
主卧,在餐厅,书房装饰点缀都反复出现蓝色,形成一个整体点缀,把每个空间都串联起来。在主色调灰色下,卧室运用更多的蓝色,来布置挂画,抱枕,床头灯,打破灰色的掌控,令卧室与众不同,凸显个性。布艺饰品均来自亚麻的舒适质感。
飘窗放置梳妆台,既节省卧室的空间,又充分利用空间。
阳台是一个狭窄又狭长的空间,为更好利用空间,在两边布置了不同的使用功能。面向窗外的左边,是洗衣间,解决洗衣问题,置物架上可以养小绿植,增加美观度。
阳台另一边是休闲区,飘窗上放置亚麻坐垫,一个小茶几,两个抱枕,一套茶具,简易构成茶室,适合聊天谈心的秘密基地。
指导老师:谢穗坚老师
设 计:李志莹
谢谢阅读,不足之处,敬请提出。

