顺德职业技术学院“势在必行”城市空间创意设计大赛
(34号参赛同学作品)”初染“——“势在必行”城市室内设计深业城公寓电商办公室设计
2018-02-06
指导老师:梁耀明、梁小媚老师
设计:高洁霞、伍家盈
下面来介绍一下方案基地的具体情况吧。
该公司主营红木家具,但是呢,目前在开发红木电商公司,BOSS在深业城买了总面积大约在二百五十平方米的一排公寓改造为办公室,该公司员工大概八到十个。
详细地址在顺德区北滘105国道与林港路交汇处东南角的深业城公寓,BOSS不惜重金 委托我们素染设计工作室负责本次改造设计工作。
针对甲方爸爸的要求,本次设计主题为初染,意为该方案为素染工作室的第一染,也是甲方爸爸做电商销售红木公司的第一次,设计风格我们定位为现代简约风,我们历经千辛万苦终于找到了好看且登对的参考图。
然后我们一起来了解一下本次改造设计方案![]()
(图纸部分)
(深业城公寓原始平面图)
(平面布置图)
(功能分区图)
(总经理路线图)
(员工路线图)
(客户路线图)
(天花尺寸图)
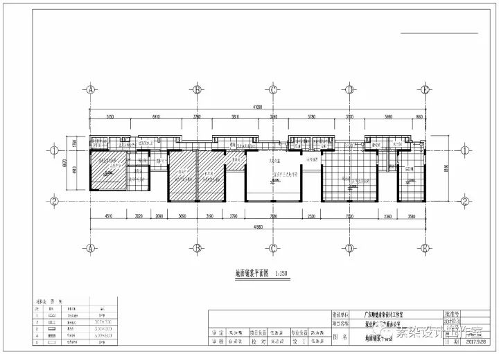
(地面敷设图)
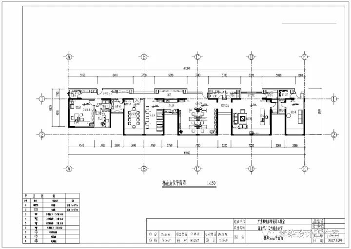
(插座布置图)
(立面指向图)
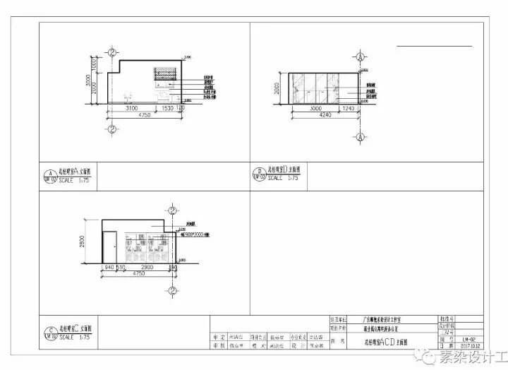
(总经理办公室立面图)
接下来就是我们打动甲方爸爸的重头戏 了!!!
(各办公室效果图)
(总经理办公室)
(公共办公区)
(公共办公区)
(会议室)
(前台与等候区)
(员工休息区)
(女性洗手间)
(员工茶水间)
(公司内部通道)

