顺德职业技术学院“势在必行”城市空间创意设计大赛
(31号参赛同学作品)“Warm”— —”势在必行”城市空间设计大赛 碧桂园桂澜山13座03单位户型
2018-02-06
指导老师:谢穗坚
设计:谈晓泳、何翠雯
Begin
甲方设定
男主设定
男主人是一个年龄为28岁的企业高管,他是一个顾家的好男人,性格比较随和,
喜欢简约、干净明亮一点的生活环境,
追求简单平淡的生活。
女主设定
女主人是一个24岁的女青年,和男主人相恋多年,
是一个温柔持家的好妻子 ,
只希望和丈夫过温暖平稳的生活。
现代爱情故事
男主是企业高管,事业上步步高升并且与相恋多年的女主人步入婚姻的殿堂,购置了一套商品房,共筑爱巢。女主人结婚后为准备怀孕而专心做家庭主妇。所以我们的甲方是一对新婚夫妇。
因此,我们在考虑室内设计的时候,会着重于儿童房和休闲室的设计,儿童房的设计会考虑预留孩子的成长空间而休闲室会考虑到身为企业高管的男主人平日都是在繁忙的工作中度过,所以希望他在休息日或者下班回家后能得到适当的休闲活动,而且休闲室内还设置了空间给未来的孩子玩耍,所以家长能在休闲室内得到休闲的同时能和孩子沟通交流。
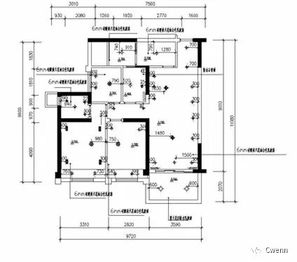
平面图
功能分区图
天花图
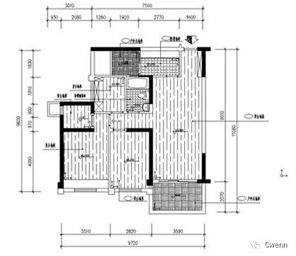
地面铺贴图
意向风格
我们采用的是北欧风格,具有简洁、自然、人性化的特点。
客厅效果图
主卧效果图
儿童房效果图
休闲室效果图
卫浴间效果图
厨房效果图
设计说明:男主人喜欢的室内空间环境是简约风格,所以我们设计的室内风格是现代简约风;
而甲方是一对新婚夫妇,所以在色调方面我们会呈现出一个温暖舒适的家居环境来
营造甲方的新婚后的美好生活,
因此我们选择的主要色调是暖灰色和浅木色。

