顺德职业技术学院“势在必行”城市空间创意设计大赛
设计:林思滢
指导老师:谢穗坚
平时每次加班很晚、出外旅游很多都是住酒店
但是都会觉得酒店挺压抑的
除了冰冷的四面墙就没了
住的都是一些快捷酒店
例如7x,如x
根本就没有家的感觉
贵的又住不起
毕竟是学生党
所以
想设计一间民宿
顺便给大家普及一下民宿
民宿不同于传统的饭店旅馆
也许没有高级奢华的设施
但它能让人体验当地风情
感受民宿主人的热情与服务
并体验有别于以往的生活
和酒店最大差别就是
民宿有家的感觉
那么接下来
就给大家介绍一下我的设计方案
这家民宿位于广东佛山
对于广州,肇庆一些周边城市来说
交通都很方便
也介绍下房主
也就是甲方
jerry&seeing
房主想以后来住的住户
都可以更加注重精神层面的交流
毕竟现在很多年轻人
都抱着手机不放
要好好珍惜眼前人才对
希望是1+1=1
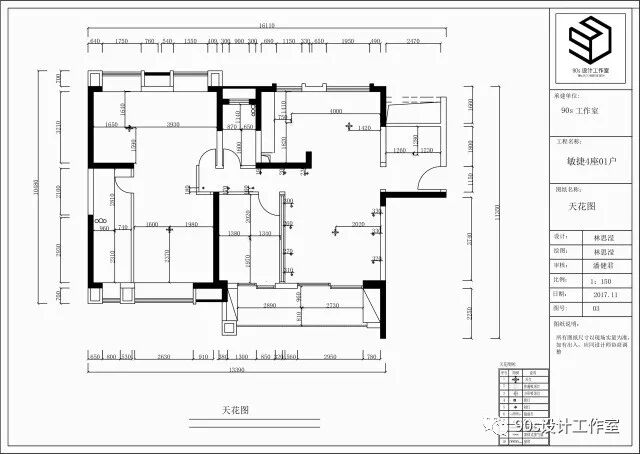
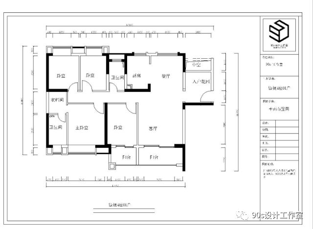
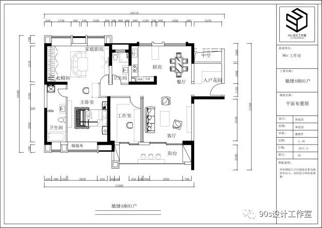
首先给大家看看我们的一些平面图
平面原始图
平面布置图
天花图
地花图
房主为了让房客们更加多交流
客厅的电视机都没了
变成了书架
和多张沙发
为了就是能够
多多说话
多多看书
做一个有思想的新青年
接下来就是我们的效果图了
没有电视背景墙
只有书架和植物
为了就是让住客
在知识的森林中探索
厨房弄成开放式
和餐厅一起
也是为了能让房客在煮菜时
有更多的互动
也显的空间开敞
公共区域整体色调以白 灰为主
再加些木色和植物点缀
整间房子偏北欧风格
灰调子加木色搭配
客厅的空间也很大
如果有朋友来玩
完全不用担心空间很狭隘
卧室就不会那么灰了
带点蓝色活泼一些
毕竟卧室是一个让人真正
放松的空间
所以稍微做的活泼一点点
当然,如果在家有时候觉得无聊了
我们还有私人影院
可以窝在家里
看电影
不用去电影院看人头
这也是个放松的空间
这些有温度的房子是不是比那些
快捷酒店好很多呢?

