顺德职业技术学院“势在必行”城市空间创意设计大赛
指导老师:谢穗坚
设计:胡苑虹
楼盘:美的翰城
户型:四房两厅两卫两阳台
使用面积:130m²
建筑面积:140m²
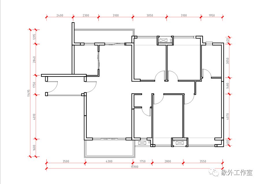
美的翰城位于北滘新基路,毗邻佛山一环、广珠西线高速、105国道、佛陈路、三乐路、林上路等贯穿东西南北,即将开通的广珠轻轨及规划中的广佛地铁3号线、7号均设站项目周边。 周边各项基础市政配套完善,区域整体形象较佳,生活便利,具有浓厚的居住氛围。
小区在2015年新建。南北通透,采光好,户型方正,没有浪费空间。 房子采光好,每个房间都有窗户,无遮挡视野好。
业主信息
常住人口:一对夫妻、一个儿子
业主要求
需要一个书房。为了方便聚会,要求厨房是开放式,还需要一个客房。因为业主热爱波普艺术,所以风格要求是波普风格。
▼原始平面图
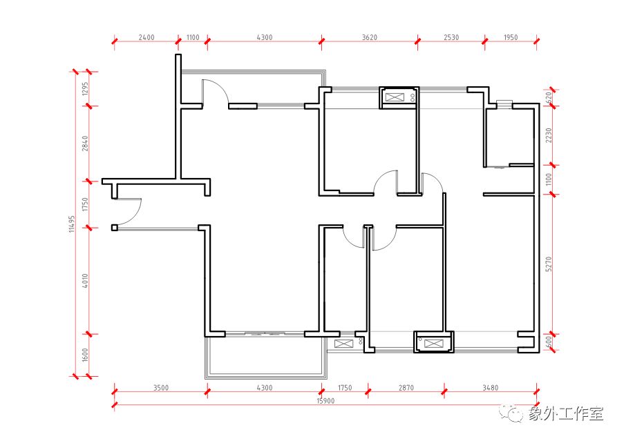
犹豫常住人口只有三个,要考虑到业主需要书房,所以把一个次卧与主卧打通。厨房的墙也打掉,和餐厅合在一起,餐厅边的门窗也改动了位置。公共厕所的使用人数不多,所以把隔墙打掉,门向外移,增加了使用面积。
▼改后平面图
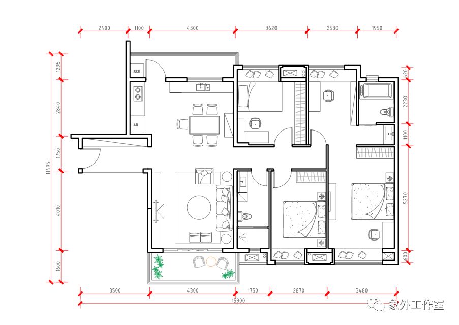
▼平面布置图
为了打造一个适合业主的方案,设计风格采取了波普风格,设计注重塑造夸张的、视觉感强的效果。鲜明的颜色搭配、黑白颜色的衬托、具有波普风的装饰画点缀等构成整个设计。
客厅大面积的粉色墙漆,和餐厅、开放式厨房的黑白搭配形成鲜明的对比,但其中又有相互的联系。蓝色调的卧室,适合业主在休息的时候得到放松。本方案把原来的一个卧室和主卧打通,用作书房,方便业主的工作。厕所干湿分离,方便使用清洁。中性色调的木地板,衬托着空间的变化。
接下来,请欣赏效果图。
▼玄关
白色的墙面和木地板结合,显得空间柔和明亮,玄关柜选择了有大面镜子的,让玄关显得宽敞明亮。走廊简单的设计是为了突出其他的空间的设计,起到了很重要的衬托,也是很好的过渡空间。走廊最后的墙面的装饰画,让简单的空间中增加了一抹色彩。
▼客厅
客厅设计了粉红色的墙面,让空间显得明亮温暖。和黄色的长沙发构成了强烈的对比,但又不显得突兀。蓝色的沙发脚踏、深棕色的皮革单人沙发和多种图案颜色的抱枕为空间增加了个性化的色彩,让空间丰富,不会过于单一。白色的茶几边几、电视柜、吊灯和黑白色的地毯,让空间统一,颜色不会过于杂乱,黑白的地毯把空间压了下来,更有层次感。装饰画选取了波普艺术的画,和空间的颜色相互交融,构成了富有艺术感的波普风格。
▼餐厅和厨房
开放式厨房和餐厅结合在一起,让空间更加宽敞明亮。开放式厨房是业主所需要的,便于和家人朋友一起下厨,增加了在家下厨的乐趣,增强了彼此的交流联系。黑白色的色调,和客厅形成对比,但门窗的粉色和餐椅的黄色,又和客厅有联系,相互协调,不会显得突兀。餐边柜的装饰,起到了画龙点睛的作用。
▼主卧
蓝色色调的卧室,空间显得宁静放松。在蓝色色调的基础上增添了一些亮眼的色彩,增加了空间的趣味性。白色的衬托,突出了重点,让空间有轻有重。
▼书房
▼次卧
▼客房
▼厕所
▼阳台
谢谢各位浏览,喜欢的在下方点个赞
,欢迎留言。

