顺德职业技术学院“势在必行”城市空间创意设计大赛
装修从风格上讲,可以分中式风格、北欧风格、东南亚风格、地中海风格等等,而这些装修风格我们都已经屡见不鲜,那当小众的朋克style闯进家居,会擦出怎么的花火呢?手指头请往☟翻吧!
first,让小编为大家介绍一下该户型的各种信息☺
▼户型信息
位置:广东 佛山 顺德碧桂园
户型:顺德碧桂园·桂澜山2室2厅2卫一厨
建筑面积:93㎡ 套内面积74.02㎡
▼户主信息设定
甲方:单身都市丽人
性别:女
年龄:30岁
职业:自由职业者
喜好:看书 听音乐 看电影 撸猫 摄影
常住人口:4人 ▎甲方 58岁的母亲 5岁的侄子 3岁的侄女
附加信息
1.甲方有一只陪伴多年的猫同住
2.甲方提出主卧不用多大,满足基本休息条件即可
3.甲方辞职后生活经济主要来源于手工制品
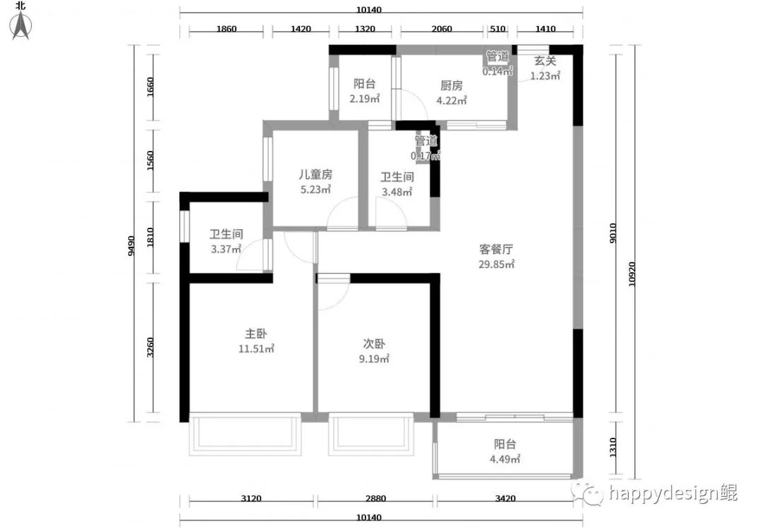
▼原始平面图
户型总评:本户型是从北南进入,户型朝南。不通透,室内通风不理想。整体平面比较规整,有利于内部分割,面积利用率高。
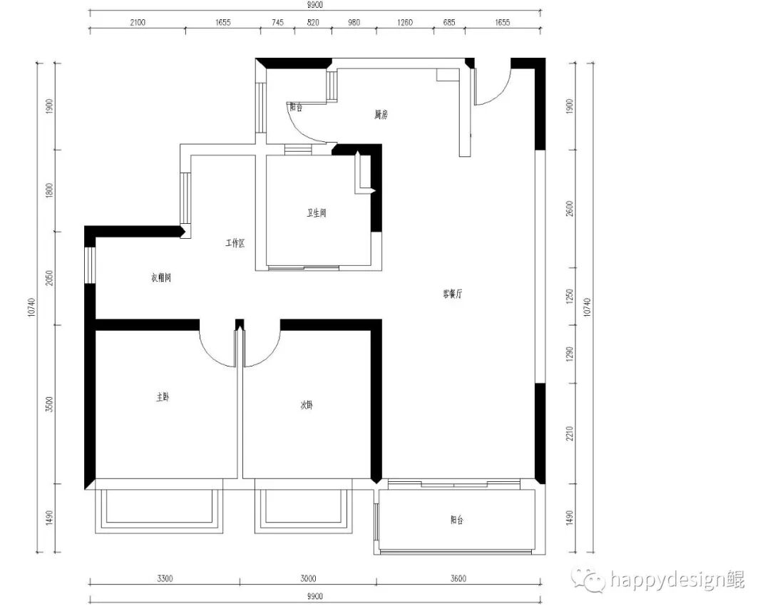
▼重新规划
改动解析:1.厨房把门卸掉,使之与餐厅形成一个半开放的空间
2.靠近客餐厅的卫生间扩大了,让甲方使用起来更加方便
3.原来的儿童房规划为工作区
4.主卧卫生间把墙体打通改造为开放的衣帽间,同时改善该户型采光与通风
▼平面布置图
biboobiboo,各单位注意接下来是一大波宇宙无敌炫炸天效果图来袭
▼各空间效果图
客厅
电视墙应用了智能魔镜作为装饰,扩大了客厅的空间感,使客厅不会因为甲方大大小小的藏品而感到局促,而反射的画面又起到挂画的作用,让整个客厅更加有看点。平滑的墙面让隐藏起来的投影幕使用起来更加方便。一举多得的智能魔镜让生活更便捷。
客餐厅整个空间大面积的使用了同色系的水泥灰,这是一种最原始纯粹的色彩,拥有柔软感、刚硬感、温润感和冷漠感。水泥墙面经过手工打磨,透漏出质朴低调的气息。餐厅的灰色墙面、灰白色的天花、客厅的黑色铁格网背景墙,经典的黑灰相搭,使得整个空间设计充满层次感、高级感。木质茶几和几株绿植的点缀,多了几分清新自然。
背景墙上挂着的是甲方自己拍摄的一些作品,用作装饰和展览。
智能魔镜的上方是一条槽钢,起到呼应客厅的朋克风格作用,同时是猫咪的娱乐好地方。
餐厅
水泥灰拥有天然斑驳,有着属于自己的肌理之感,木制餐桌的搭配,稀释了铁艺摆件和水泥灰墙面的冰冷。独特个性的吊灯,营造了宁静的用餐氛围。
刷黑的绘画墙赐予孩子们一片广阔无垠的想象天地,原木色的书架温和有质感。
厨房
厨房延续客餐厅的水泥墙风格,干净整洁的氛围让甲方的烹饪时光轻松愉悦。整整有条的厨房用品赏心悦目。
主卧
主卧只是添置了基本的床品和灯具,营造安静祥和的睡眠空间,整体设计简约大方不失风格。绿植的使用破开了水泥灰的冷感,给灰色调的卧室增添温暖感。
床头边放置了一张木凳子,可以放置小物品。细小独特的摆件显示出甲方的好品味。
次卧
次卧是给甲方的母亲和一对侄子侄女来玩的时候睡的,大量原木色系家具让室内充满温感。云朵星星的吊灯增添了卧室的童趣,让小孩子更加容易安睡。
卫生间
卫生间大面积采用水泥墙壁,水泥墙的纯粹质朴,有着清爽干净大气的视觉享受。
工作区
基于甲方的经济收入主要来源于手工制品,所以工作间放了很多盒子,满足大量手工材料的收纳需求。
衣帽间
深棕色系的衣帽间简约大气,同时兼具化妆间的功能,衣物按照一定顺序摆放,既方便又整洁,很合甲方爱整理爱收纳的心水。
休憩阳台
阳台放了一个个性独特的太空吊椅和许多绿植。
窝在靠窗的吊椅,享受阳光的沐浴,捧一本书,品一杯茶,都是极好的享受。
玄关
玄关放了一个矮柜,充当鞋柜兼凳子,方便女主人进出换鞋。大门做了一个美式谷仓门的样式,呼应客厅的炫酷朋克风格。
工作阳台
工作阳台由于空间有限只放置了收纳洗衣用品的柜子和洗衣机。宜家风的绿植和挂镜使工作阳台透出丝丝清新自然。
▼平面彩图
▼好了,所有的空间都已经向大家介绍完毕,感谢你的耐心观看,欢迎各位看官提出意见与指导。
最后给大家送个小福利^-^
附上甲方可爱迷人の大肥猪美照
设计:陆嘉瑜
指导老师:谢穗坚
感谢!后会有期

