顺德职业技术学院“势在必行”城市空间创意设计大赛
小组成员:黄嘉贺 陈婉琳
指导老师:谢穗坚老师
Step 1
— 甲方 —
男主人:40岁,服装设计师,平时需要在家里设计一些服装,然后拍照发上网来销售,或者接单
女主人:38岁,高级烘焙师,喜欢有空就叫三五知己到家里来聚一聚开心一下,偶尔也会在网上接一下单
女儿:14岁,初中生,大部分时间都在学校住宿,只有周六日会回家
特别叮嘱 户主要求:
1.男主人和女儿都喜欢看电影
2.男女主人希望主人房空间不要太小
3.各人都有独立的工作环境
Step 2
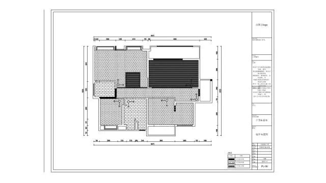
— 平面图 —
君兰江山3,4-02
起初,我们选这方案是有非常多的可改动的空间,而不是只拘谨在一个被限死的空间里
设计后的 平面图
天花图
地花图
Step 3
— 渲染图 —
过道 渲染图
过道 我们运用过道分隔开了两个屋主人的常用空间,然后我们再进行对过道的设计,采用大理石的地砖,让人有一种轻奢的味道。
烘焙间&餐厅&厨房 渲染图
烘焙间&餐厅&厨房 然而我们对家里女主人的职业,进行了设计,我们将之前原平面图客厅的位置给了女主人做烘焙间加好友聚会的客间,可以齐聚一堂亲朋好友来开party啦。
主人房&观影室 渲染图
主人房 主人房的空间分隔是最大的,分成了三个空间:卧室套间,观影室,衣帽间。卧室和观影室是用可移动隔断分隔的,一是保证了卧室的私密性,二是可以扩大卧室的使用面积。
服装设计室 渲染图
服装设计室 男主人的服装设计室是跟原来厨房及餐厅相互换了,原来厨房的位置变了摄影间,用于服装的拍摄展示。设计间,方便剪裁、设计服装。
卫生间 渲染图
卫生间 分隔开一个淋浴间和一个窗户进行通风,长形的镜子能更好的增大空间的纵深感。
女儿房 渲染图
女儿房 小小的房间也是女儿德小天地,考虑到女儿现在已经是初中生了,也想到要留宿在学校,所以就将房间设计的现代格调。
你觉得意下如何啊。我在想,你们肯定觉得还不错的
以上就是我们组详尽解说。

