顺德职业技术学院“势在必行”城市空间创意设计大赛
设计主要成员:李卓炜 钟兴辉
指导老师:谢穗坚老师
hello,大家好
很高兴大家来到这里
听我向大家介绍一下我们的设计方案。
在北欧、极简、日式……诸如此类的设计风格在当下正大行其道。我们以艺术为切入点,探索设计与人之间更加丰富微妙的联系,以崭新的视角和丰满的构想,为群体打造出更能彰显自我个性,融时尚与经典一体的居家空间。
大家对下面的图片有什么想法呢?
相信大家看完之后会觉得这些画很疯狂,其实它就是波普艺术。波普艺术被运用到很多设计当中,也是很多设计师选材的材料。我也希望把波普艺术融入到我们的设计中,让每一天的生活都充满动力。
这是一个99m²的空间,但是里面居住人数却有5个人, 他们分别是:男业主,女业主,女儿,儿子,保姆。
男业主:职业:保时捷4s销售经理 年龄:34 爱好:跑步,电影,读书
女业主:职业:会计师 年龄:33 爱好:跑步,电影,旅游
大女儿:职业:小学生 年龄:10 爱好:羽毛球,电影,旅游
小儿子: 年龄:1岁半
保姆 :年龄:28岁 爱好:家务,煮饭
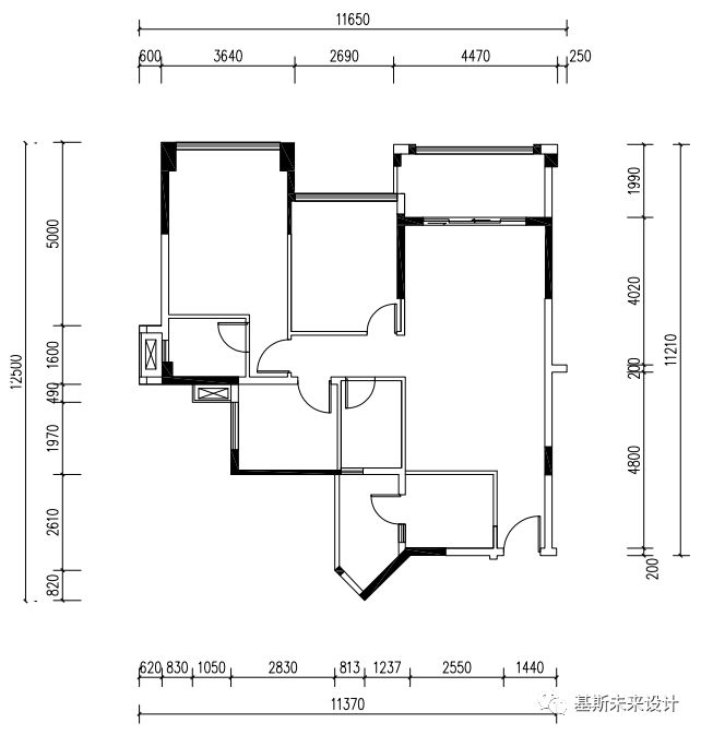
因为居住空间较小,我在原户型进行了小小的修改。
这是原户型图
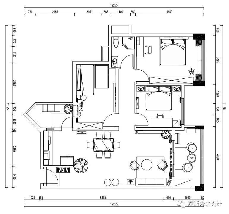
这是修改后的户型河家具摆放
“现在很流行高级灰、无表情、肃穆清冷的设计风格,仿佛不这样不足以表明自己的风格。而我认为设计不是设计师个人情感和意识的表达,而是满足客户的内心深处的需求。家是一个充满爱的地方。温暖、幸福、愉悦是一个家能够给予的最珍贵的情感记忆。我在设计客厅的时候一直在思考,这是一对已经生了两个小孩的家庭,到底什么样的空间才是这个家的主人所需要的。我想设计应该是来源于生活,又高于生活,最后要回归生活的。
客厅
客厅+厨房
与极简主义的单一感和冷酷感迥然不同,我们将明亮的色彩和挂饰的线条融入客厅的空间钟,透过丰富的空间颜色变化,呈现出生活的多元情绪,营造繁忙都市中的家庭温馨愉悦的生活场景。沙发后的墙画拉伸了空间的纵深感,让整个空间丰富起来,让这个五人之家生活更有动感。
墨蓝和白作为色彩中的主角,成为宁静与热情的糅合体,给人亲切温暖的感受,却不失波普的动感。墙上的的挂画为空间的提供丰富的变化,白色的衣柜和白色的床褥,书桌相互呼应,使得空间看上去更具整体性。
女儿房
女儿房
女儿房中,一幅巨大的地图墙画,是我们的独特创意,也成为空间的点睛之笔。整体的蓝色调,呼应了整个空间的色调。大型的地图,不仅对视觉产生巨大的冲击,还使得人们对世界各地充满憧憬。恍惚之间,时间和空间在此交错,仿佛置身于世界各地。白色的组合柜,更使得整个空间看上去素雅。
儿童房+保姆房
儿童房+保姆房
因为考虑到空间的利用,我们把保姆房和儿童房合在一起,也为了方便保姆照顾小儿子。在卧室的墙壁上,我们大量运用到浓郁的波普艺术风格元素,时尚大胆、色彩鲜明的涂鸦,在形式异化的同时带来动感的节奏。
厕所
阳台
我们坚持为室内设计的极致呈现即是:把艺术融入生活,把生活艺术化。从生活中汲取灵感,娴熟地将生活的感受和室内设计共融,以一种超越于流行的高雅、自由、精致,创造出终极臻美的精神场域,为人们创造更加丰富精彩的生活方式。

