顺德职业技术学院“势在必行”城市空间创意设计大赛
              (25号参赛同学作品)“少即多”——“势在必行”城市室内空间设计深业城户型
            
            
              2018-02-06
            
          设计:邝紫盈 孔美琦
潘建君 林思滢
指导老师:谢穗坚
重点在下方
所以直奔主题吧
现场条件
户型方位:坐北向南
户型总面积:320㎡
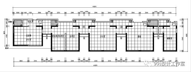
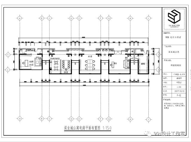
各平面图
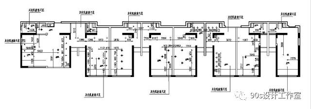
原平面图
手绘平面布置图
方案一平面布置图
方案二平面布置图
小空间的细节图
天花布置图
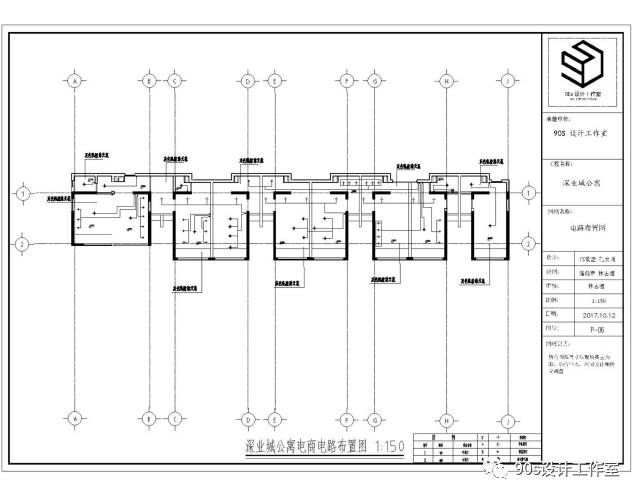
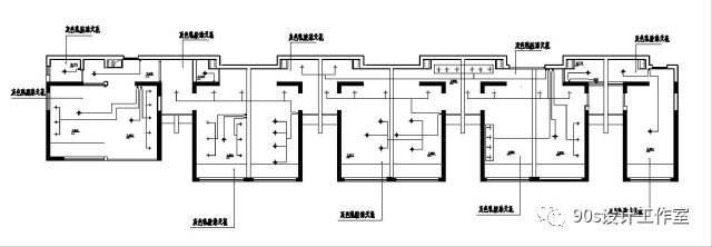
电路布置图
地花布置图
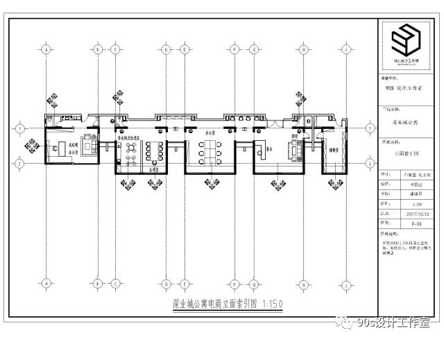
立面索引图
立面图
会议室立面图
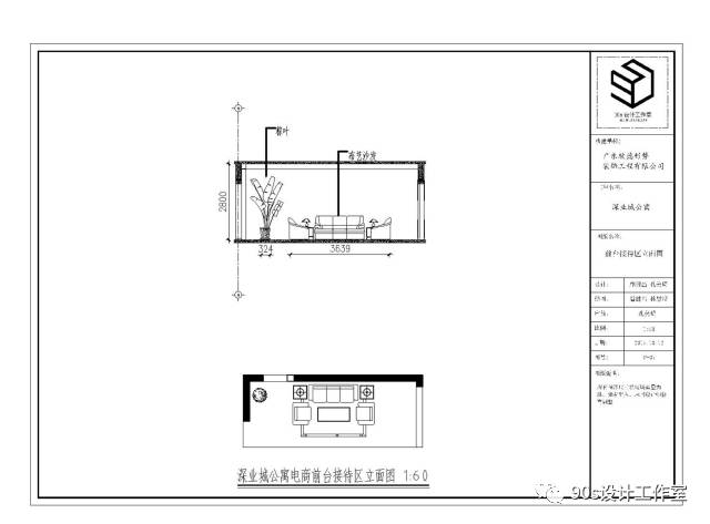
前台立面图
平面功能分区我们也分的
比较细
动线分析
动线分析我们也分为
顾客
总经理
员工
意向图
我们在做设计之前
把每个空间的意向参考图
都找了出来一一对应
素材
整个方案我们使用了cad su
也寻找了很多相关的素材
也做了草图手绘
办公区
总经理办公室一角
会议室
前台
前后平面俯视图对比
鸟瞰图
顶视图
含灯具顶视图
鸟瞰图
剖面图
各空间鸟瞰图
效果图
看了之前我们的那么多准备
接下来就是把我们的
构思
想法
变为真实的
整个色调以黑白灰为主
前台
办公区
茶水间
总经理办公室
洗手间
会议室
储物室
其实我们在整体设计当中
遵守着
少即是多的原则
所以精简 现代 简约
就是我们的设计风格
为期四个星期的
方案设计
大家在这段时间都成长了不少
从一开始被红木这个关键词
捆绑了自己的想法
到最后被老师提点
重新拾回我们熟悉的风格
大家都不容易
在选择家具时
大家都会有争执
可是到最后还是会冷静下来讨论
感觉大家的心渐渐沉了下来
然后经过上学期居住空间设计的磨练
大家在这个课程过程中
对于空间的尺寸感都有提升了
尺寸的掌握也比上学期要好了
虽然有进步
可是还是希望以后做设计
不急不躁
沉下心
秉着我们工作室的理念
要让设计变得更有意义

