顺德职业技术学院“势在必行”城市空间创意设计大赛
简介
-
设 计:黄宗南
-
指导老师:谢穗坚
-
项目地址:顺德碧桂园桂澜山庄1,2座02单元
-
建筑面积:约95平方米
-
设计风格:现代简约
-
设计说明:本案的业主是一对奉行“丁克”的年轻夫妇;男主人是一个35岁的企业高管,女主人是一个32岁的高级白领,文化程度高,夫妻俩想让彼此成为彼此的唯一;繁杂的都市生活常常使人身心意倦,回到家希望有一个舒适、简约的居住空间,既要有夫妻共享的大空间,彼此又要有个人的专属空间。
-
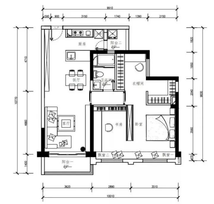
原户型图
-
平面布置图
客厅的天花板我们用了最简洁的大块面的装饰,时尚又大气;我们尽可能的减少装饰上对空间使用面积的占用,把空间留给生活。
客厅的一侧墙我们用了木纹线条的设计,既装饰了空间,又使之与窗帘形成线条的呼应,延伸了视线;浅色的木地板、L型的沙发、倒梯形的茶几,还有特意挑选的装饰画,使整个空间较好地融合在一起。
客厅的另一侧,一体式柜让电视与收纳柜结合,加以植物、书画饰物的装点,整个客厅简洁干练而不失雅观。
厨房采用开放式的设计,让其与饭厅、客厅更好地融合,更符合甲方“丁克家庭”的需求。
卫浴间我们做了最基本的三段式以及干湿分离。
卧房是休息的空间,除了必要的床褥被铺,以及两侧的床头柜,我们只在墙壁上安上了一幅挂画作为装饰,把空间留给睡眠。
在卧房的一端是男主人的书房及工作间,共享的飘窗成为了两个空间的过度桥梁,飘窗的上方可以用来休憩,下方则可用以收纳。
书房一侧也采用了线条的墙面装饰用干净利落的木质连墙桌,使之与墙面、书柜形成一个整体;在书房与卧房的隔断板间我们设计了一个推拉式的收纳柜。
女主人的专属化妆间位于进入房间的左侧,与衣帽间紧密相连,因为女主人衣物较多,所以在化妆间也设置了一个衣柜,这里就是女主人的小天地。

