顺德职业技术学院“势在必行”城市空间创意设计大赛
(23号参赛同学作品)势在必行城市空间设计大赛——“光照的冷暖”
2018-02-06
今天的设计,位于佛山市顺德区天悦海湾8座04
业主是一位怎样的人呢?
他们是一个一家四口幸福家庭
丈夫:是一名从事多年平面设计的一名设计师,生活井井有条,
喜欢闲暇的时候,静静的喝茶、阅读。强调空间中,必须要能感受到“时间”
妻子:是一名教书多年的英语老师,她特别是喜欢那些休闲的
音乐,她希望家里面充满温馨的感觉,不想颜色太沉,太过压抑。
男青年:是一名年轻有为的小小画家,现在在艺术类院校学习色彩,要求空间照明充足
女青年:是一个在校学习的女大学生,喜欢看电影、下棋等。她希望她未来居住的空间,要阳光和亲近自然
因此我们就去实地考察
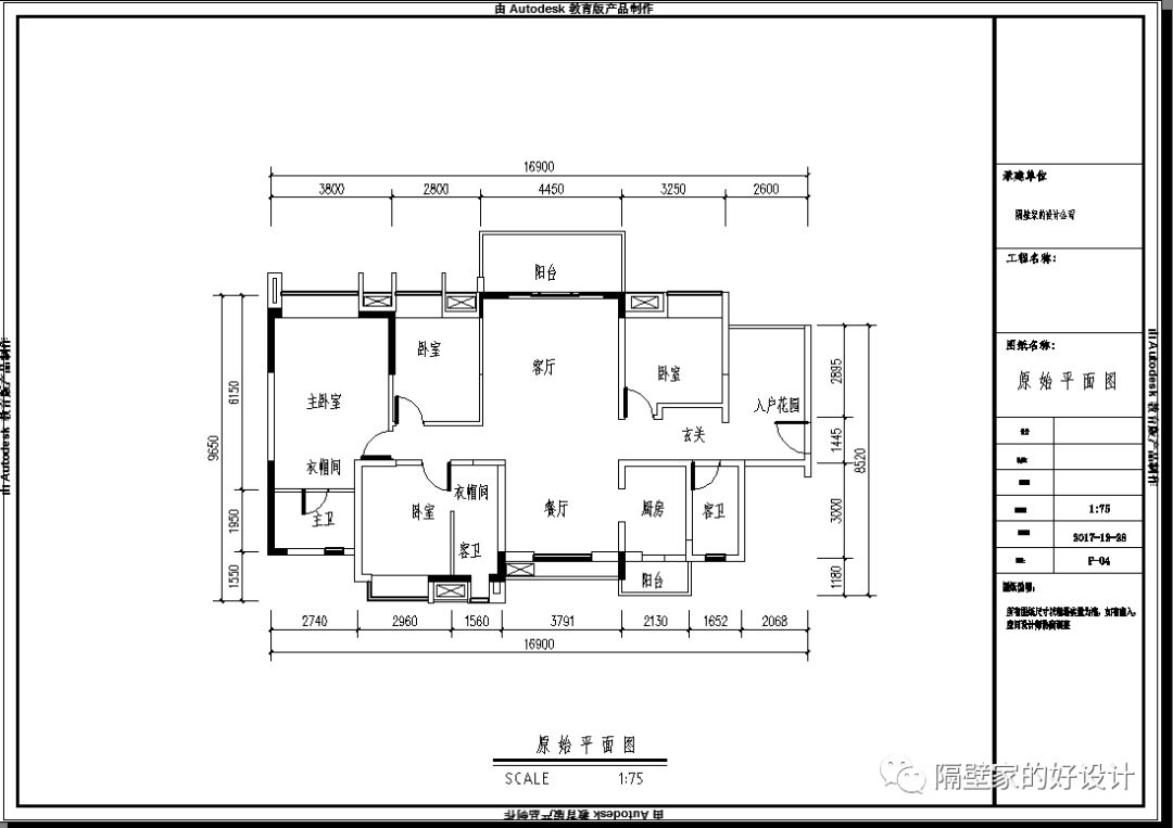
是一个总面积为总面积为:113㎡
先看看原始的平面图吧:
然后,经过几天后
我根据业主要求分成:
一厅一厨三卫四房还有两个阳台
布局后,为了让他们更加的满意,我们对室内的家具与铺设进行了严密的设计研究
最后:
接下来是?
效果图展示
玄关
大厅
阳光照射在大厅里面,经过不同大理石和木材的反射,使整个空间的光亮高洁。
饭厅
晚上后
早上的它
最后就是主卧
利用大理石的纹理与模板的纹理,围绕成具有强现代感的空
如果你想继续深入了解
请扫码,看全景
谢谢大家

