顺德职业技术学院“势在必行”城市空间创意设计大赛
(20号参赛同学作品)北欧情调——“势在必行”城市空间设计
2018-02-06
势在必行”城市空间设计
敏捷9座04户
设 计:谌婷婷、刘倩
指导老师:谢穗坚老师
▼户主信息
三口之家
男主:35岁 职业:医生 爱好:烹饪
女主:32岁 职业:漫画家 爱好:绘画
女儿:7岁 职业:学生 爱好:画画
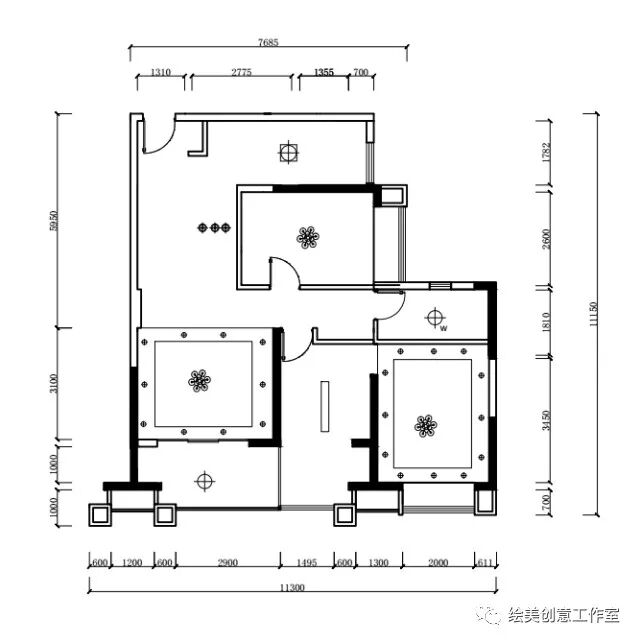
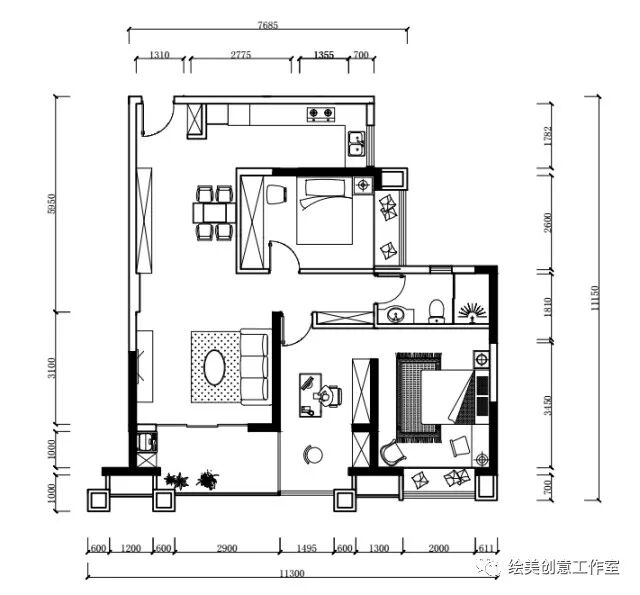
平面布置图
天花图
客厅
家居整体风格呈现北欧现代的风格,拥有简洁,自然,人性化的特点
餐厅
大量的木制家具,回归自然,大面积的柜子,增加储物功能,整体的大理石地板,增加了一种高级感,并把空间连成一个整体
书房
书房主要提供阅读,绘画功能,根据户主爱好来布局它的功能,书房与阳台相隔一面玻璃墙,让空间更加明亮
主卧
次卧
主要给女儿居住,随女儿成长,家居相对比较成熟
卫生间
做了相应的干湿分离
厨房
这个冬季我们相约
期待我们更好的作品

