顺德职业技术学院“势在必行”城市空间创意设计大赛
设计:谢滢滢
指导老师:谢穗坚
首先,来说一下这个人物设定。正当夕阳西下,那片桃花林沐浴在落日的余晖中,满地花瓣似有香气一般吸引着人。山的轮廓如镶金边,那丝残阳与远处的边界线融为一体。只见一少女穿着淡黄杉子,从远处缓缓走来,但见她双眉弯弯似柳叶,秀气的鼻子微微上翘,脸自如玉,她的服饰并不像是富贵人家,不过是寻常农家之女,却叫那位公子移不开眼。他们就这样相遇了。
呀,没错,这都是一个梦,缠绕女业主一个很久的梦,里面的那个少女就是女业主,公子便是她的丈夫,女主说她相信这就是与她丈夫的前世。而男业主也说,第一次见到女主的时候,就感觉到好像似曾相识。
上面呢,就是我们这次的男女主啦。男主与女主结婚到现在已有五年,育有一对可爱的双胞胎女儿。夫妻两人呢,平常都喜欢出去旅游,拍照。这次呢,是按照女主意思来设计的,她说想要记住黄昏的那一刻心动。
接下来就是他们房子的介绍啦
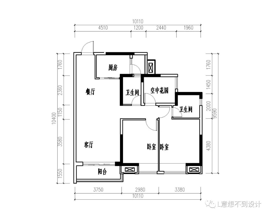
位置:龙湖10座01
面积:78㎡
原始平面图
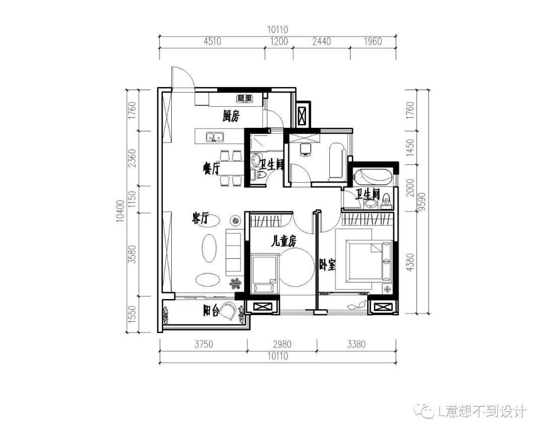
平面布置图
好了,到了此次的效果图展示啦
玄关处。大面积的白色与原木色,给人一种干净,简洁。再加上一点绿植和鲜花,融合在了这个温馨舒适的氛围里。
这张图可以看到在室内没有做任何的隔断,这样可以增加室内的延伸感。
开放式厨房与餐厅。既能解决室内面积小,又能方便与家人之间的交流和扩展房间内的视野,也可以在做饭时,随时注意孩子的情况。厨房运用大量的白色,可以使厨房变得更加的明亮。在原有的白色调与原木色上加了一点花卉,整个空间就不会显得那么生硬,添加了一丝温度感。墙体上的画也能起到活跃氛围的作用。
客厅。空间的面积较小,所以大多采用布艺家具,且它的样式简约,现代气息比较浓烈,给人的舒适感休闲感也比较强,更容易让人体会到在家里那种放松的感觉。以浅灰色调为主,搭配一些深灰色的毯子与桌子,使得房间更加有层次感。加以少量的黄色点缀,让这个房间不那么沉闷,瞬间活泼了起来。再增添点绿植,空间变得更加的丰富。
小阳台。以浅灰色的砖墙为主,即延续了室内的色调,又运用了砖墙特有的肌理,让墙面不会那么单调。
主卧。房间墙体的颜色相对于其他空间的颜色比较深,给空间制造安静的感觉。墙面上的挂画与床上的被子颜色相呼应,给人一种冲击,又不显得突兀,巧合的融合在这个房间里面。
儿童房。房间以粉色为主调,贴切两个小女孩喜欢的颜色,满足了孩子们的童心。采用上下铺的形式,让两个孩子都有自己独立的小空间,也可以在睡觉时不被对方打扰。从飘窗处照射进来的自然光加上室内的光,给予了房间温暖与安全感。房间内的抱枕,地毯,布娃娃,这些柔软的布料的给房间营造舒适的睡卧环境。
好了,到这里就结束了,还请各位看官多多指教。

