顺德职业技术学院“势在必行”城市空间创意设计大赛
"行”——“势在必行”城市空间室内设计大赛,龙湖春江名城。
设 计: 刘家淇、肖智中
指导老师: 谢穗坚
一、设计概况
1、楼盘信息
楼盘简介:龙湖·春江名城,位于佛山市顺德区政府重点打造的大良新城商住区内,周边云集政务、高端商务、休闲娱乐配套。项目背靠顺峰山,南临德胜河,景观资源优越;紧邻德胜西路,东接105国道,坐享城市立体交通网络,交通便利。
户型:四房两厅三卫
建筑面积:约130㎡
室内面积:约110㎡
2、业主信息
家庭人数: 共8人。夫妻双方、爷爷、奶奶、 一男孩7岁 、一女孩1岁。
需求: 风格为新中式、现代、简约。
大理石运用
有一个书房(具备阅读书写功能)
3、设计理念
行,道也。人一生会去很多地方会做很多事情,行来行去家才是最温暖的。以行为理念,运用木材与大理石为主相辅相成,更是一种元素由自然到生活的行进体现。以现代风格为主结合居住者所需,打造人性化、自然的居住空间。
4、设计元素
斑马木又名乌金木,其华美的纹理为人们所欣赏。木作为自然的产物可以说是有生命的物体,在设计中采用此元素,体现一种自然与现代家居的结合,一种木在“行”的理念
大理岩原指白色带有黑色花纹的石灰岩,剖面可以形成一幅天然的水墨山水画,非常有生命的感觉。石加木源于自然用于生活,二者呼应体现出自然的氛围更是一种“行”到家居的体现。
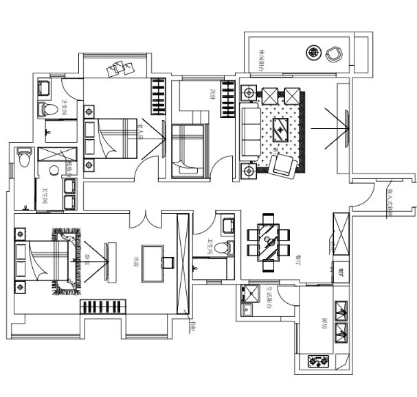
二、平面布置
1、原始平面
此户型空间开阔,通透自然。进行部分空间改动极大化提高居住品质。
2、平面布置图
结合业主需求对空间进行了改动。
主卧与书房拆除原始墙体连通起来,在原有的基础上即达到了功能的满足也增加了空间的大气。将原来的主卫扩充增加了一个小的梳妆空间达到独立的功能满足。
儿童房由于空间狭小采用地台式布局,极大化利用了空间,满足基本功能又舔几分童趣。
三、效果图
1、客厅—— 行云流水
客厅整体开阔,阳光充足。配合大理石地板,经过处理的木饰面,个别色彩的跳动,使整个空间明亮自然。整体空间布局明确、大气、顺畅,大面积的木纹装饰墙面增加流动感,营造一种畅游无限的自然感。
2、餐厅—— 一素二行
与客厅的统一贯彻,使客餐两厅合而为一,整体更加开阔自然。不变的元素,不变的基调,犹如不变的三餐,由客厅到餐厅,从餐厅到客厅,点亮到明亮,更加体现着一种“行”的理念。
3、主卧—— 上善若水
主卧与书房的贯通,木材与生活的融合。将两房连通,增加其空间的大气,使用石材同木材进行装饰,体现一种沉稳大气的感觉,对生活的追求,也是两空间自然的衔接在一起,在满足功能的前提上进一步提升了空间。
4、老人房——如鱼得水
空间采用木与布的结合进行装饰,温馨自然在整体基调上增添一份家的温暖。飘窗处设计成可休息的地方使得空间利用率加大,个别色彩的点缀让空间更加活泼跳跃,鱼元素装饰贴合老人,更寓于着如鱼得水。
5、儿童房—— 传承新生
一概不变的元素,不论是大人房小孩房都寓于着不忘初衷,加上符合儿童的元素在木的基础上,配合活泼的墙面使空间更加的生动。地台式的床充分利用了空间,避开狭小的缺点,配合玻璃隔断,空间区域更加合理。
6、洗浴间—— 高山流水
洗浴间采用大理石材质为主,整体统一,功能分区。配合部分木材元素为空间增添几分自然相融的感觉。
四、设计用材

