顺德职业技术学院“势在必行”城市空间创意设计大赛
(15号参赛同学作品)“清”——“势在必行”城市空间设计创意设计大赛
2018-01-09
户型信息
•地理位置:顺德伦教万科沁园26楼01户
•使用面积:73㎡
•设计风格:新中式
•主题:清
户主信息
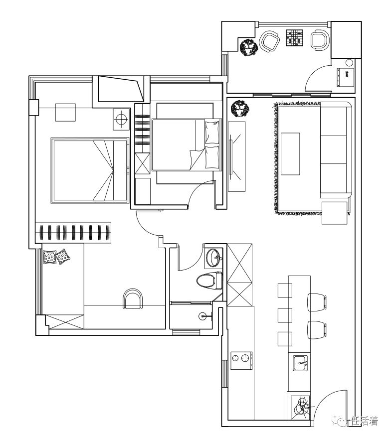
平面图展示
原始平面图:
修改后平面图:
功能分区图:
平面布置图:
终
于
到
。
。
。
效果图:
首先我们会看到左手边有一个衣帽架和一个鞋柜放在玄关旁边,方便业主安放衣服和鞋子。
然后再往前走会看到一个开放式的厨房,开放式的厨房放大了整个的空间。
客厅
主卧
书房
次卧
阳台
卫生间
效果图就到此结束了,谢谢大家,如果你能给我意见,你可以在下方评论区谈一下,或者也可以当面交谈一下。

