顺德职业技术学院“势在必行”城市空间创意设计大赛
本方案是针对万科沁园楼盘某房的一个方案,下面是本方案的详细内容
Part One
业主信息
男女业主:威法老板老板娘
大女儿:12岁 在读初中生
小女儿:7个月 襁褓中的婴儿
Part Two
现场及场地分析
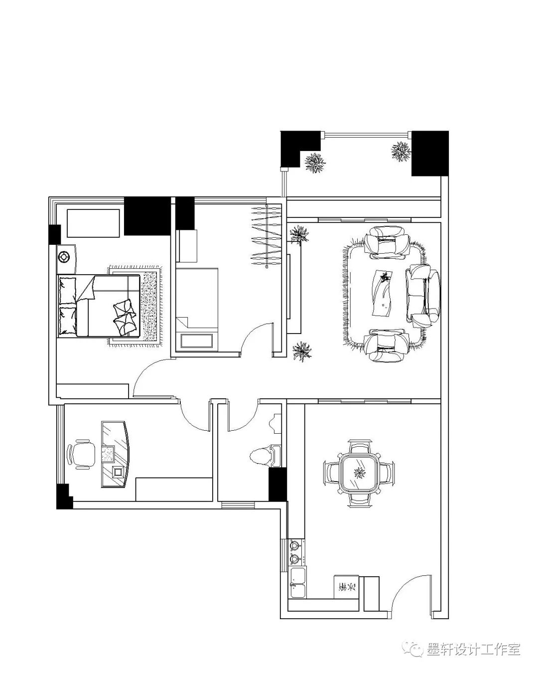
场地为万科沁园某楼盘23楼,离地面较高场地为三室一厅,其中两间卧室,分主人房和女儿房,另一间为书房 总面积80平方 面积较小 功能要求较多。
Part Four
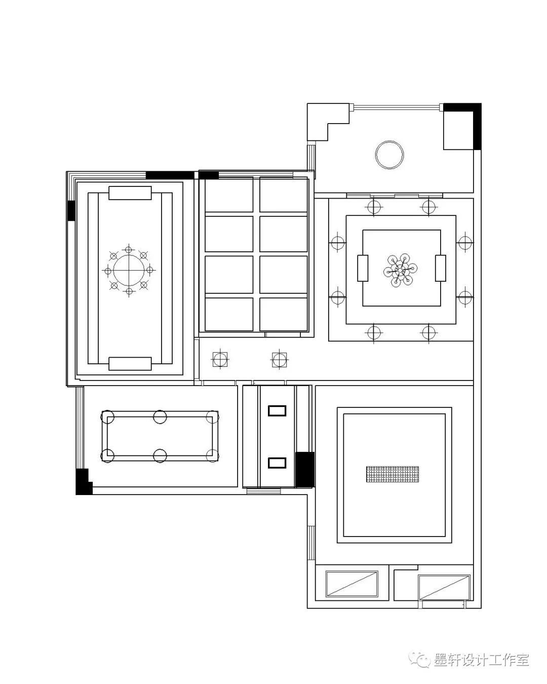
平面图
平面分区
平面布置意向图
天花吊顶图
开关及强弱电布置图
Part Five
效果图
餐厅
餐厅的家具,灯具及背景以中式风格为主要格调装修,充分考虑男主人的喜好,此外,餐厅大胆采用了一个隔断,是为了隔断餐厅与客厅及卧室一边的关系,男主人有打麻将的爱好,而考虑到这一点餐厅可以兼顾这个爱好,隔断即是为此而设立,打麻将时会或多或少产生噪音和令人不适应的气味,而此时就可以利用开放式的厨房的抽油烟机,平时的做饭可能会产生一定的油烟隔断也是具有隔断油烟的功效。
客厅
考虑到男主人对于红木家具的喜爱,客厅的沙发,茶几柜子多以红木为主,背景和灯具仍保持中式风格。
阳台
阳台设立了一个建议的“茶室”,可以让家人闲暇之余在阳台小憩,也可以看看周围的风景,阳台摆设了一个衣架,可以很好的利用空间,23楼的噪音不算太大,所以可以尽情享受
主人房
主人房的主意家具仍旧是红木,可以看到我们主人房摆有婴儿床,小女儿仅7个月大正是需要照顾的时期,摆放在主人房是方便母亲更好的照顾到小宝宝。
女儿房
女儿房主要以比较女性的基调,女儿房的床是个可以拓展的床,下层的拉伸可以多出一个位置,方便小女儿稍大些的时候两个女儿同住女儿房
书房
考虑到男主人的爱好而设计的书房,仍以中式为主,书桌面向的墙壁上是字画,充满国学意味,其中摆放的画架是为女儿摆放。
卫生间
卫生间当然也不会错过中式元素

