顺德职业技术学院“势在必行”城市空间创意设计大赛

(13号参赛同学作品)“家”——“势在必行”城市室内设计敏捷4座02户型
2018-01-09

指导老师:谢穗坚老师


设       计:文伟泽


——"势在必行"室内设计大赛敏捷4座02户型




  

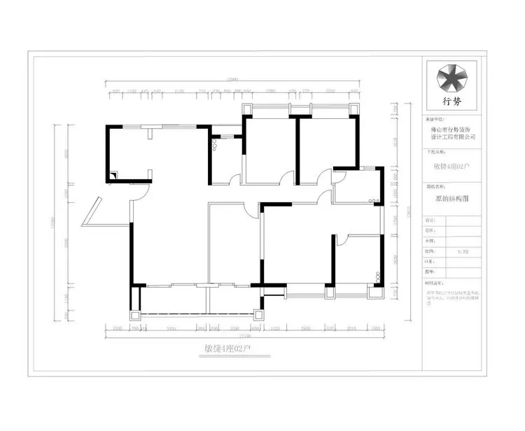
敏捷·畔海御峰位于顺德大良云近东区核心地段,邻近顺峰中(小)学,占地面积逾13.5万平方米,建筑面积及超过50万平方米,产品涵盖了高层电梯洋房

、商业街以及五星级会所,目的是打造为佛山顺德的高端住宅大盘。


楼       盘:敏捷·畔海御峰

户       型:4座02户型

建筑面积:200㎡

室内面积:170㎡


设计理念:以后现代表现手法的新中式风格,将传统元素与现代元素有机的结合在一起,更多的偏向于现代人的生活方式及审美取向,舍弃了一些传统中式较为繁琐的装饰修边,保留了中式的应有的文化内涵,打造理想家居环境。



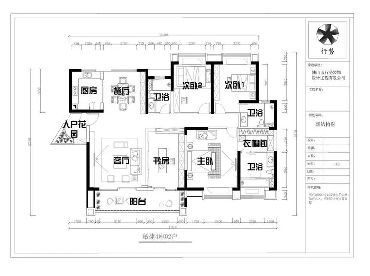
平面布置图


  此户型主次分明,采光通风较好,利用空间手法,打造理想的居住环境。

  解析:1.客厅相邻的卧室相互打通,做为户型中的开放式书房。2.次卧门移位,避免门冲,增加隐私性。3.次卧2作为多功能室(客房.孩子娱乐房等)。

  整体空间以深木色和灰色作为基调搭配,达到视觉色彩上的平衡,以蓝色作为点缀,设计中运用简单的线条寓意豁达的生活态度。

客厅为起居与待客的空间,整齐,有序,合乎礼,意尊重。以天然木质肌理材料做为电视背景墙,,沉稳大气的理石铺砖,风雅韵味的中式家具再加上温婉柔和的蓝色地毯,简单而不失内涵。


 

 沙发背景墙与相邻的房间做打通处理,实木木板做为地台,形成一个开放式书房,以玻璃推拉门作为隔断,随时可以转换成户主所需的空间。通过不同材质大块面的关系,丰富空间的层次,体现整体的艺术气质。


 

 书房另一侧的作为客厅与卧室的过度空间,以白色的柜体,柜体的上方利用玻璃中放置枯木的和暗藏的光影,描绘一副宁静写意的"山水画"。



下图为效果的动态展示


 

 每个生命都有存在的意义,竹、枯木、梅花,含蓄内敛包容,花美枯木也美。



  阳台作为与阳光最为亲密,少不了绿植的身影,搭配编织休闲椅,为户主提供休闲空间,享受大自然的景色。


 

 餐厅延续客厅风格,以蓝色与木色相互搭配。



主卧的一侧以隐藏门的方式,显得更加整体性和隐私性,内置的衣帽间满足男女主人的储物功能需求。


  

卫浴空间以大面积的理石铺砖和木饰相互搭配,整个卫浴空间让置身沐浴的人体会温暖中的一丝舒爽。



次卧



全景效果图