顺德职业技术学院“势在必行”城市空间创意设计大赛
——“势在必行”城市空间设计大赛 龙湖春江名城3座
位于顺德大良新城商住区,背靠顺峰山,南望德胜河,景观资源优越;南临德胜西路,东接105国道、西临金沙,坐享城市立体交通网络,客运码头近在咫尺,交通便利。
楼盘:龙湖春江名城
户型:四房两厅三卫两阳台
建筑面积:约130平米
使用面积:约110平米
业主信息:
家庭成员:甲方两夫妇、一个7岁儿子、一个1岁女儿、甲方父母二老六人
业主要求:
必须要有一个书房,书写阅读功能。风格要求新中式、现代、简约
设计理念: “石光木影”
奠定生活品质的是人生的经历,精致而富有内涵的事物使人留恋其中。在整个空间中,天然的大理石与木条的结合,石光与木影的融合,展现出虚与实之间的变化,如同每一秒的都有不同的画面,不同的经历,浮现在你眼前。
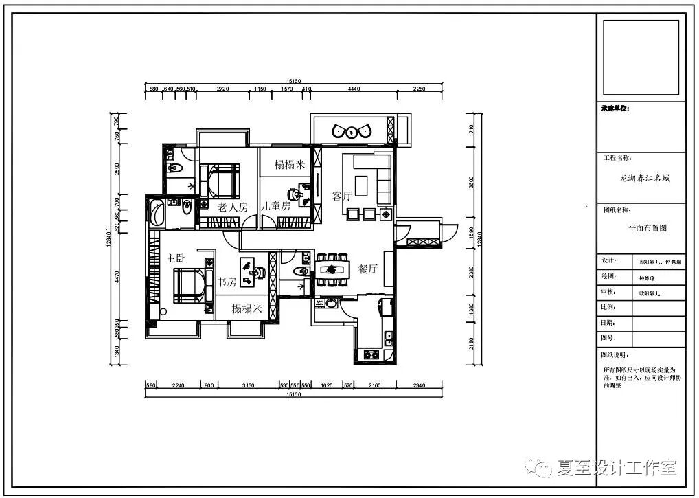
原始平面布局图:
原始布局是经典的商品房样式,但是过于普通以及未必能满足业主的要求而又让空间看上去大方宽敞。所以再重新布局后把走道的一部分空间利用的更好,并且打通了主卧和次卧,在之间做了一道1.8米的隔墙,用作主卧和书房。
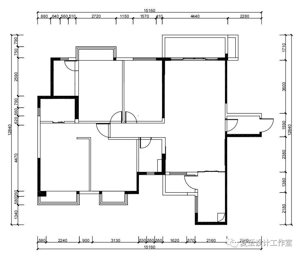
修改后布局图
平面布置图
整体空间以原木和大理石作为主要色调,以水墨画作为点缀,达到一种意境。设计中运用规律的线条加上光影的效果,让人耳目一新。
客厅采用大理石和木条的结合,天花在两面背景墙做了暗藏灯带,让洒下来的灯光效果柔和而又特别。木色背景墙和木色电视柜衬托,白色布艺沙发搭配轻盈的玻璃茶几。整个空间形成一种意境。
沙发背景墙大面积木条的阵列给人静谧的感受,在灯带的照射下形成特别的光影效果。一幅泼墨画成为客厅的点睛之笔。
客厅电视背景墙采用鱼肚白大理石,再加上红铜的线条点缀形成规律。
餐厅以静谧的木色调为主,木条的排列和延伸形成的光影变化温暖而带有一种意境。
大理石台面的餐边柜上摆有两幅抽象水墨画,带给整个空间些许生动的气氛。
书房依旧采用木色家具,一幅竹的水墨画与木色结合,带给你诗情画意。
主卧与书房采用矮墙画屏的隔断,鱼肚白的大理石纹加上有规律的红铜色线条,舒适而又有感觉。
整个空间灰白的色调让人放松,整片衣柜与梳妆台很好的结合。飘窗也让房间多了一抹光亮。
主卫的整个空间以白色大理石为主,营造干净而宽敞的环境。
次卧是两位老人居住,所以采用原木暖色调,营造温馨舒适的气氛。
淡淡水墨画的背景墙让房间有了意境,也有了内容。
儿童房考虑男孩子的喜好,在儿童房做了天蓝色墙纸,搭配木色榻榻米床和原木书桌椅形成了一个属于孩子的空间。
在格局上打破了常规,在装饰上利用了大理石、木材和水墨。只想营造一个温馨、意境、舒适而又特别的环境。石光木影。
希望历尽都市喧嚣的你,有一座温暖而特别的港湾。
设计:欧阳颖儿、钟隽瑜
指导老师:谢穗坚
感谢你的观看 欢迎意见

