顺德职业技术学院“势在必行”城市空间创意设计大赛
10号参赛同学作品
2017-12-16
冬天里一把温馨的火!!!
家不论大小,即使只有一间卧室,只要住的舒服,那就是最适合自己的空间。这套商品房利用现代色彩与木质的搭配,以及灰色的使用和一点蓝色黄色的使用,还有不少创意设计,充分利用空间,夫妻俩居住,舒适温馨。
以白色为背景色调的客厅,以木框墙和木色地板引出温馨感,以沙发的灰色壁画的天空蓝,营造空间视觉中心,提升室内质感,惬意生活油然而生。
书房的设计之妙在于,充分利用窗台在旁边做一张榻榻米,一个简易书架,和一张简单的书桌,一个小书房空间就有了,书房做的是一个隐形门,也可以做客房。
电视柜用的是北欧家居的风格,可以留下地面空间,易于清洁卫生,还能给未来的收纳留有空间。独特立体的植物架子,带出简约之美。
半开放的厨房里,黑色桌子就是餐桌空间。以黑色搭配白色经典的黑白,营造通透明亮感。对面是一个小吧台。
玄关处挂了一副油画 ,进门挂着一副现代装饰画
接下来就是我们的重头戏,我们的主人房配有一个小小的衣帽间,阻挡不了我们对美好生活的追求和热爱。
这是业主的一个女儿的房间
卫浴间,干湿分离,一目了然、干净清爽,方便打理卫生。
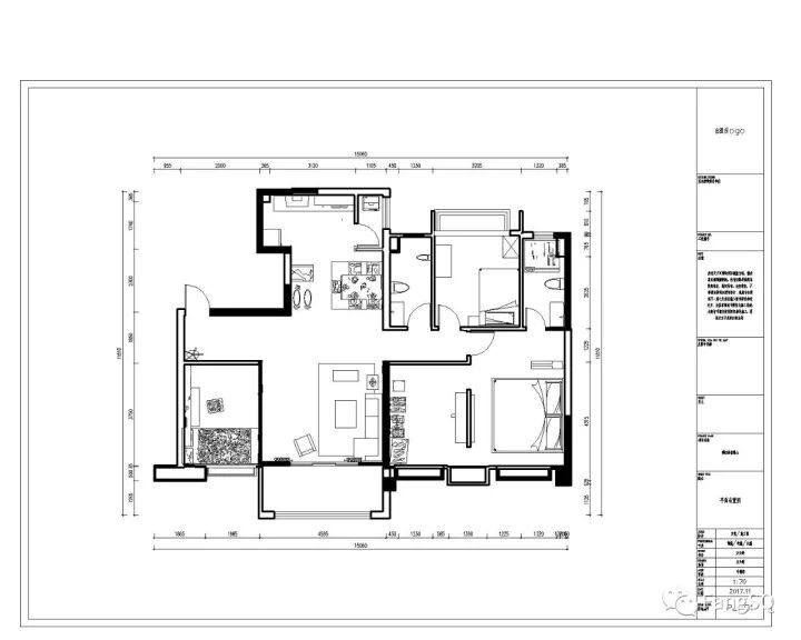
接下来是我们的平面图和鸟瞰图

