顺德职业技术学院“势在必行”城市空间创意设计大赛
外面这么冷,不进来喝杯茶吗?
冷冷的寒风在脸上胡乱的刮~我......我......
在这个温暖的日子里,让俺们喝着炸鸡吃着可乐,一起看个方案吧!
首先介绍一下我们的甲方:
三口之家
30岁男主人,摄影师,热爱摄影与旅游
28岁女主人,花艺师,热爱花艺与阅读
5岁儿子,幼儿园在读,性格开朗
户主对于新家的要求,希望设计简洁现代,采用北欧风格。
所以,我们参考了一些风格案例
像这样
以及这样
最后,
我们决定,,
做这样的,,,
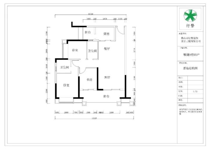
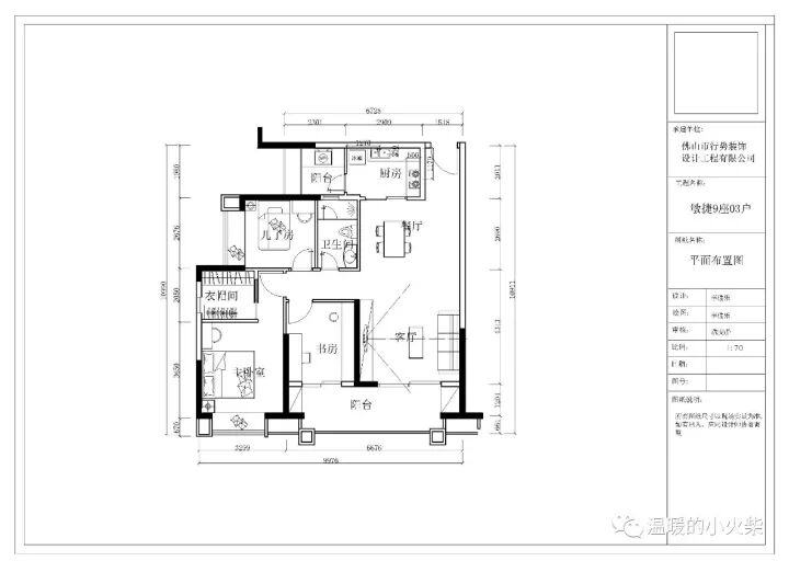
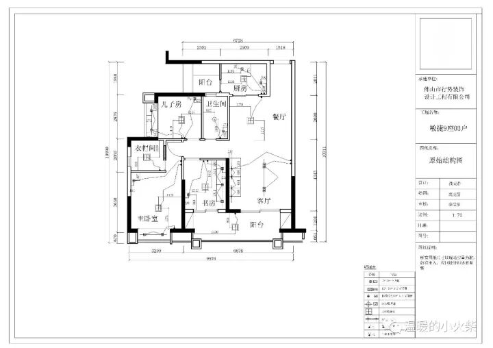
好了,让我们先来看一下原平面图
根据户主的风格和现实需求,将功能布局合理分配,充分满足户主和他们孩子的需求,并能体现户主的个性。
天花图
说了这么多,想必已经迫不及待地想看到我们的效果图了吧?既然都那么期待了,那就不会让你失望啦~
先来一张美美哒的阳台展示图吧
户主儿子的房间,有没有觉得特别符合他阳光活泼的性格呢?
户主的房间,给人一种静谧而温馨的感觉
客厅,高雅而舒适,是个休闲的好地方
厕所,功能一应俱全,舒适感不言而喻
想必大家都知道北欧风格吧,但你又多它们有多少深入了解呢?~想必你好奇的心在蠢蠢欲动了吧?那下面就开始我们的科普小剧场吧~
北欧风格(Nordic style)是指欧洲北部国家挪威、丹麦、瑞典、芬兰及冰岛等国的艺术设计风格(主要指室内设计以及工业产品设计),具有简洁、自然、人性化的特点。
下面是关于一些北欧风格的种类
欧式古典风格
欧式风格主要是指西洋古典风格。这种风格强调以华丽的装饰、浓烈的色彩精美的造型,造型达到雍容华贵的装饰效果。
现代北欧风格
现代北欧风格总的来说可以分为三个流派,因为地域的文化有所不同索所以有了区分,分别是:瑞典设计、丹麦设计、芬兰现代设计,三个流派统称为北欧风格设计。
欧式田园
重在对自然的表现,特色在于华美的布艺以及纯手工的制作。
好了,看完方案之后有没有感觉暖和一些呢~
笔芯~❤

