顺德职业技术学院“势在必行”城市空间创意设计大赛
我是你们热情的**
这里是被冻到鼻涕发青嘴唇发紫的“设计尸”
说实话,广东现在的天气越来越冷,
回想起前几天我还光着腿在外面浪.....
如今的我已换上冬日必备的超厚秋裤......
在这种这么“贾斯丁比伯”冷的天气里,
我们决定,
这次的设计就不做以往的“性冷淡风”了,
所以,
我们尝试了一种新的东西,
叫波普风,
热情奔放的波普风,
希望能成为你寒冷冬天的一股暖流,
这个冬天,
我是你们热情的沙漠。
(没错,这个就是标题)
客户信息
我的客户是一位90后的网络红人,职业是一名知名模特,她个人很喜欢夸张的色彩,因为她觉得绚丽的色彩、充满想象力的趣味图案、层次分明的各种色块,让平静的生活多了一份快乐的随意性。
(如有有人想知道客户真人是谁,可私聊小编呦~)
设计定位
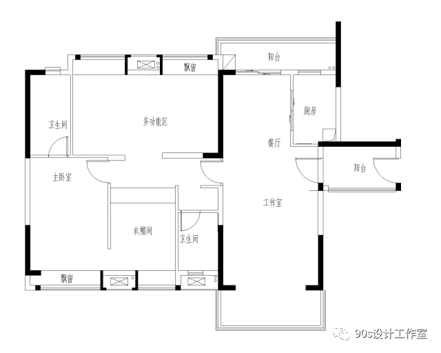
(原户型图)
本户型为四房两厅,实用面积为96平方米,自然光充足,通风透气。
根据户主的性格特点,我们特意把房屋设计得很开放,满足户主的要求,并且能很好的体现户主的个性,空间感强。
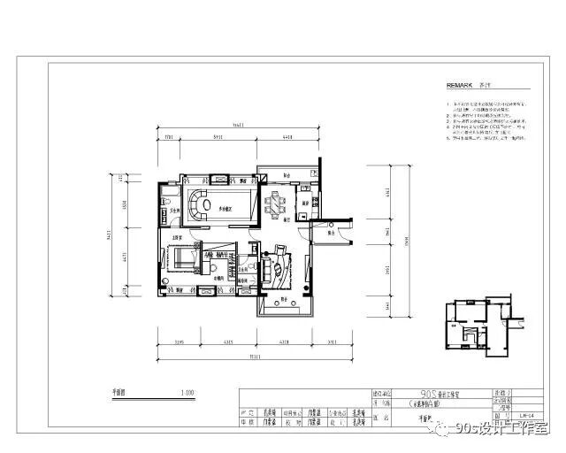
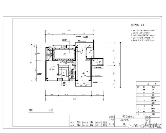
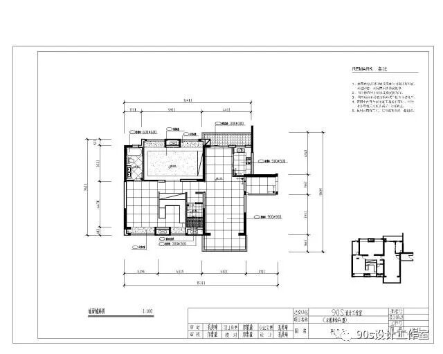
图纸
下面是图纸系列....
显示专业技能的时候到了.....
(平面图)
(天花图)
(地面铺贴图)
效果图
Emmmmmm
就知道你们只会想看效果图的了
好了
下面就是效果图了
多图预警!!!
先来一张鸟瞰图
从门口开始
这里是入户花园
基本上从这里就能看出我们设计的主色调的了
我们的客厅
位于客厅旁的阳台工作室
与客厅呼应的餐厅
厨房
独立的大多功能室
卧室
衣帽间
洗手间
好了,
既然还有时间,
就来给大家普及一下关于波普风吧
波普风格并不是一种单纯的一致性的风格,而是多种风格的混杂,它追求大众化、通俗化的趣味,在设计中强调新奇与独特,采用强烈的色彩处理,大胆采用艳俗的色彩。
好了,今天的作业汇报就到这里了,
Emmmmmm
我已经冻到手脚冰冷了,
先去吃碗方便面暖暖身了......

