顺德职业技术学院“势在必行”城市空间创意设计大赛
4号参赛同学作品
2017-12-16
周六了,该交作业啦!
同学们,要交作业啦!
别假装不知道!赶紧的!
于是我一边裹着被子一边瑟瑟发抖地发作业
One
首先来介绍一下我们的甲方
我们的甲方是一对同性夫夫,年龄在31岁左右
不久前求婚成功
双方事业有成,都喜欢锻炼
其中一位还会弹钢琴,喜欢邀请朋友来聚会
希望有一间按照自己喜好设计的新婚房。
他们的住宅想要现代风格
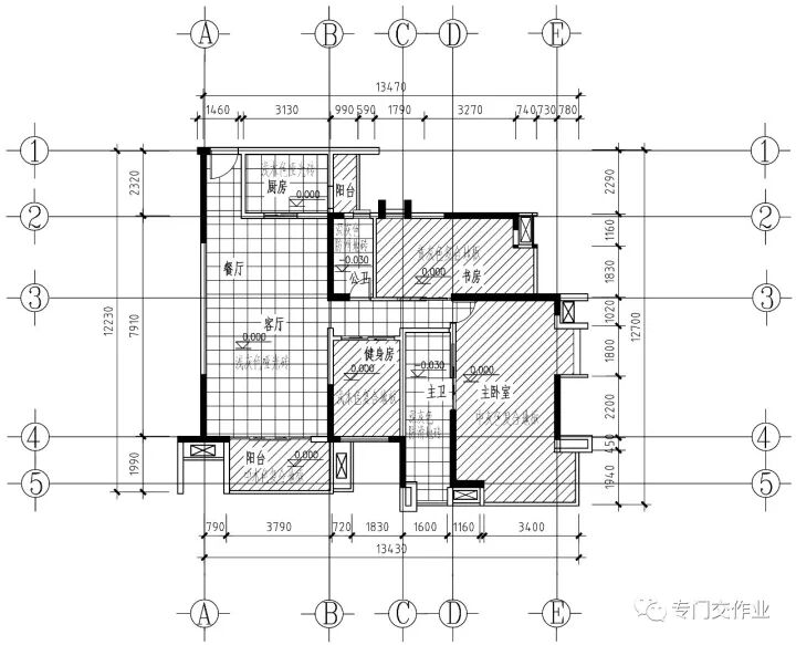
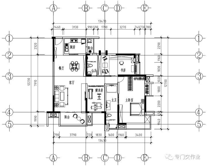
我们按照他们的要求特地设计了健身房
并在书房里放置了一架钢琴。
Two
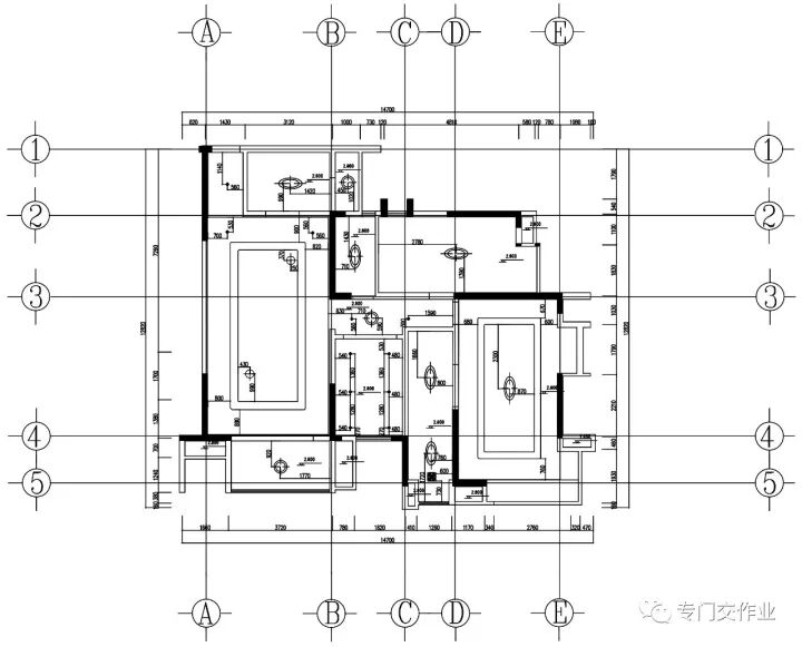
接下来就是一系列的图纸
平面布置图
地面铺贴图
天花图
Three
我们来看看效果图吧
具有现代风格的客厅
运用了白色和灰色两个主色调
添加一点棕色调
营造沉稳而不是沉闷的氛围
还做了天花
使得它有种简约大气的感觉
供屋主工作以及阅读的书房
阅读区放置了榻榻米
为了更舒适,更多地方去阅读书籍
工作区设置了很多书柜去放工作用的书
还在另一边放了一架钢琴
让屋主有时间去弹钢琴
这次我们设计了一个一字型的卫生间
两边尽头放置了淋浴间和浴缸
使屋主可以自由选择
同时采用了深灰色的防滑地砖
与墙面形成对比
卧室运用白色较多
地板使用浅木色
让人感觉干净整洁
几个衣柜形成一个空间
变成专用衣帽间
感谢你们能够看到这里
有什么建议请私聊

