顺德职业技术学院“势在必行”城市空间创意设计大赛
我们de海上风情Ver.2
我们de海上风情
1
甲方设定甲方是一个一家五口de家庭,家有两位老人家,
一位在读小学de儿子
以及从事设计de先生以及他de妻子。
从海滨城市到佛山地区打拼de一家人
2
地理位置我们de方案位于佛山君兰江山
交通状况:佛山一环、105国道、广佛地铁三号线、广珠轻轨等,10-15分钟直达禅桂、大良、广州番禺,交通极为便利。
小区内部配套:北滘小学、北滘中学、省级幼儿园、北滘广场、沃尔玛购物广场、美的广场、北滘医院、 2亿元重金打造美的会所及高尔夫球会会所、君兰会所、省级幼儿园、商业街等。
3
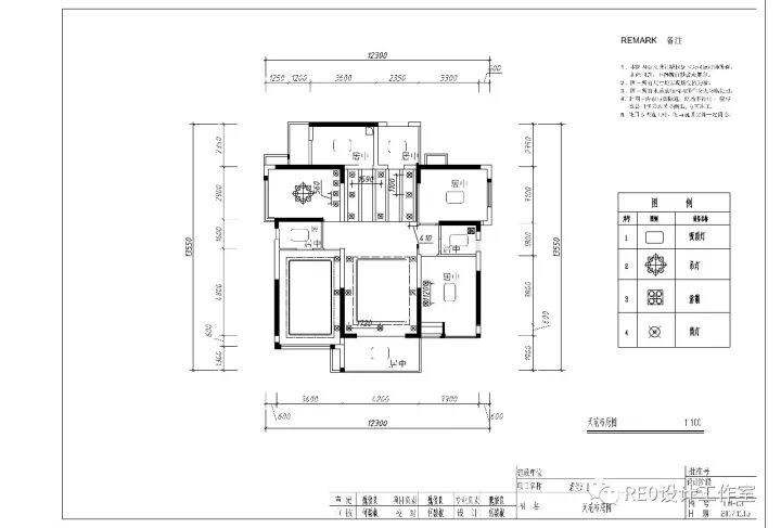
平面图首先先献上我们de平面布置图
分不清?再献上张颜色分区
蓝:入户花园,白:客餐厅,棕:阳台,红:厨房,灰:卫生间,紫:儿童房,
橙:老人房,黄:工作间,绿:主人房
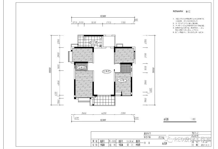
接下来看看我们de天花图
主要以暗藏灯槽与吸顶灯为主
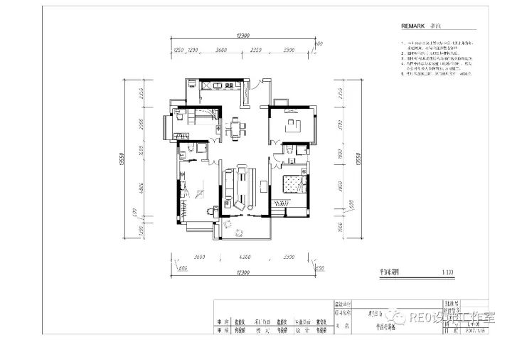
以及我们de地花图
分别用了大理石,仿古砖,马赛克和木板
4
意向风格大概知道我们打算采用什么风格了吧 没错!就是地中海风格
5
效果图这次是真货了哟!
.
.
.
.
.
客厅
从大体上来看主要色调以白+蓝为主色调 简介de设计反应出地中海de生活方式
儿童房
儿童房在色调则采用更活跃de蓝色,给孩子一个美好de成长空间。
地板则采用优质de木板,希望孩子能在这空间内快乐成长。
主人房
主人房色调上就并不用像儿童房那样活跃,反而“沉稳”最适合,在简洁de空间内功能达到最齐全de地步。
卫生间
卫生间如同意向图般,采用了马赛克地砖,在防滑de同时也同样容易清洗。
厨房
在空间上完美处理每一方,功能上也非常具全。在冰箱—洗菜台—灶台
从冰箱拿食物到清洗再到烹饪一条流线完成de设计。
工作室
为了方便男主人工作需要一个宁静de环境,以及假如工作到深夜也不会影响到家人休息,特意为男主人设计了一件工作室,同样简约de设计希望能带给使用者宁静下来考虑。
6
设计说明希腊地中海,可以体现到虽是狭小的室内套房却透着一种自然纯朴的气度。各种陈设编排大方,雅致。居室装饰自然,上乘。一副高雅格调,既突出本民族de特色,又似有地中海de共同风格。因此蓝白色de搭配,简约de陈设,希望带给甲方一种舒适感觉以及回归到曾经de滨海城市感觉,打造一个温暖de家。

